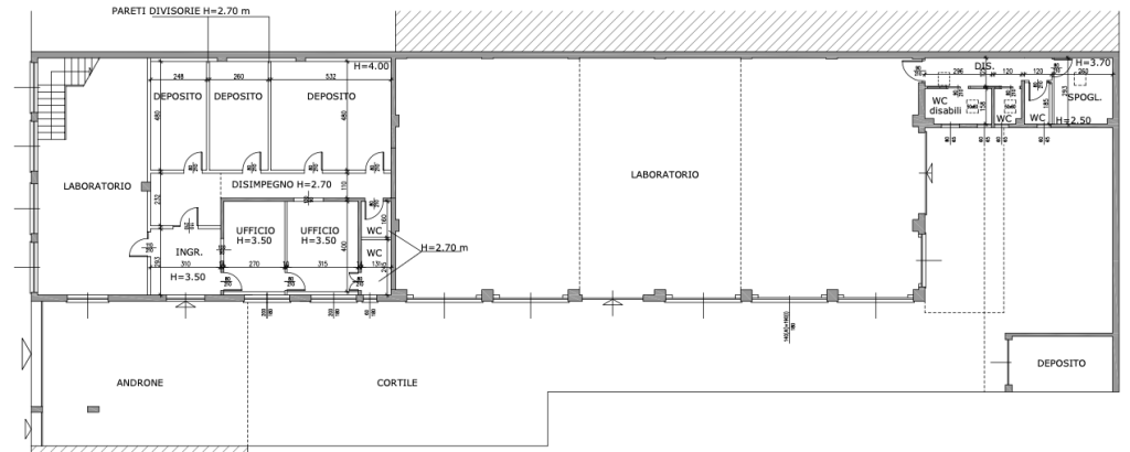
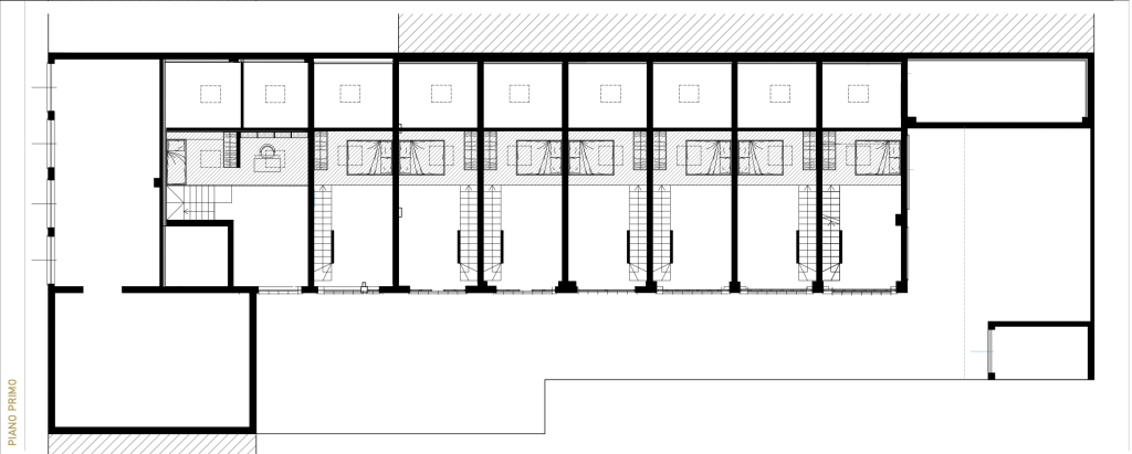
Cambio di destinazione d’uso, da laboratorio a nr. 8 appartamenti destinati ad affitti brevi- Bovisa (Milano)
Se intenderai proseguire con l'incarico, lo stesso team si occuperà di: